[Decanato] [FCEyN] corte de suministro eléctrico

tecnica at de.fcen.uba.ar tecnica at de.fcen.uba.ar
Thu Mar 30 15:10:25 -03 2023


A toda la comunidad:

                                               Nos comunicamos para
informarles que en el día de mañana viernes 31 de marzo entre las 6:00 a
8:00 se procederá a realizar un corte en el suministro eléctrico el mismo
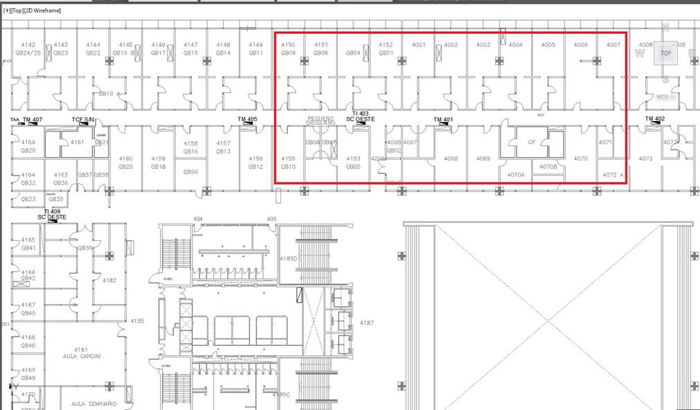
afectara a la energía de MESADA de los laboratorios ubicados en 4 piso lado
arquitectura medio edificio (Ver imagen adjunta).

 

 



 

 

 

Motiva dicho corte la necesidad de trabajar en tablero de pasillo para
realizar una nueva conexión eléctrica de mesada.

 

 

Quedamos atentos a cualquier comentario de su parte.

 

 

Saludos cordiales

 



     Dirección: Intendente Güiraldes 2160 - Pabellón II - PB - Ciudad
Universitaria - C1428EGA
     Correo electrónico:  <mailto:tecnica at de.fcen.uba.ar>
tecnica at de.fcen.uba.ar       
     Teléfono: 5285-8175/6
     Interno IP: 58175/6

 

-------------- next part --------------
An HTML attachment was scrubbed...
URL: <http://mailman.df.uba.ar/pipermail/decanato/attachments/20230330/e331cc28/attachment.html>
-------------- next part --------------
A non-text attachment was scrubbed...
Name: image003.jpg
Type: image/jpeg
Size: 79416 bytes
Desc: not available
URL: <http://mailman.df.uba.ar/pipermail/decanato/attachments/20230330/e331cc28/attachment.jpg>
-------------- next part --------------
A non-text attachment was scrubbed...
Name: image006.png
Type: image/png
Size: 29880 bytes
Desc: not available
URL: <http://mailman.df.uba.ar/pipermail/decanato/attachments/20230330/e331cc28/attachment.png>
-------------- next part --------------
_______________________________________________
Lista de distribuci?n interna de la FCEyN


More information about the Decanato mailing list