[Decanato] [FCEyN] Corte suministro eléctrico 2º piso - 5/12

SECRETARIA TECNICA tecnica at de.fcen.uba.ar
Thu Dec 4 13:28:00 -03 2025


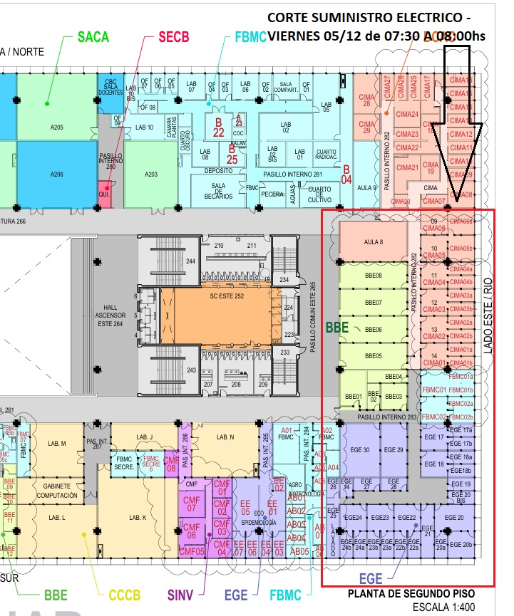
A toda la comunidad de exactas informamos que mañana, viernes 5 de
diciembre, se realizará un corte de luz entre las 07:30 y las 8:00 horas
para la adecuación de un tablero eléctrico. 

El corte se realizará en el 2º piso, lado río, como indica la imagen
adjunta. 

Saludos cordiales, 

SECRETARÍA TÉCNICA 
Facultad de Ciencias Exactas y Naturales - Universidad de Buenos Aires
 Intendente Güiraldes 2160 - Pabellón II - PB - Ciudad Universitaria -
 C1428EGA 
 Correo electrónico: tecnica at de.fcen.uba.ar       
 Teléfono: 5285-8175/6
 Interno IP: 58175/6
-------------- next part --------------
An HTML attachment was scrubbed...
URL: <http://mailman.df.uba.ar/pipermail/decanato/attachments/20251204/8d464ef3/attachment.html>
-------------- next part --------------
A non-text attachment was scrubbed...
Name: plano corte de luz 5-12.jpeg
Type: image/jpeg
Size: 261209 bytes
Desc: not available
URL: <http://mailman.df.uba.ar/pipermail/decanato/attachments/20251204/8d464ef3/attachment.jpeg>
-------------- next part --------------
__________________________________________
Lista de distribución interna de la FCEN


More information about the Decanato mailing list